
RealityDS - Predaj 3 izbového rodinného domu s garážou, letnou kuchynkou na 6,23 á pozemku, Šamorín
- Predaj
- Rodinný dom
- 3 izb
- 130 m2
Akcia - pôvodna cena 235.000,-€ Nová cena 214.900,-€ vrátane 1 znaleckého posudku!!!!
Kúpou ihneď pripravený na bývanie, nadštandardné vybavenie, kvalitný materiál, bez kuchynskej linky!!!
RK RealityDS Vám ponúka na predaj samostatne stojaci moderný jednopodlažný 3 izbový rodinný dom typu bungalov, s plochou vyspádovanou strechou,terasou do záhrady, postavený na oplotenom pozemku, s rozlohou 445 m2. Dom je situovaný v novovybudovanej slepej uličke, v zástavbe nových rodinných domov v obci Báč.
ODPORÚČANIE MAKLÉRA:
Bývanie vhodné ako štartovné pre mladých ale aj starších klientov, ktorí chcú vymeniť život v byte vo veľkomeste za bývanie v rodinnom dome v kľudnom vidieckom prostredí Žitného ostrova. Právny stav: dom s prideleným súpisným č., zapísaný, LV bez tiarch, Hú možný,
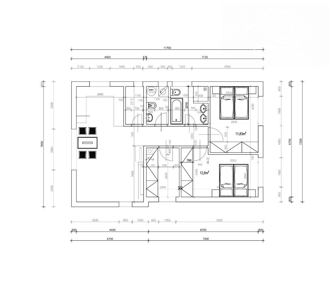
Zastavaná plocha domu je 94 m2
Úžitková plocha domu je 75 m2
DOM bol postavený v r. 2023, kolaudovaný bol v januári r. 2024.
MATERIÁL: betónové základy, brúsená tehla, zn. Leier, hrúbka 30 cm + zateplenie obvodových múrov 18 cm polystyrénom. Plochá strecha odľahčená,vyspádovaná, odizolovaná 30 cm polystyrénom. Najmodernejšie nemecké vchodové dvere, plastové okná z nového profilového systému VEKA SOFTLINE 82 mm so 7-komorovým profilom, s izolačným trojsklom zabezpečí vysoké izolačné vlastnosti. https://www.noveokna.sk/okna/.
DISPOZIČNÉ RIEŠENIE: vstupná predsieň, spojovacia chodba, deliaca dom na dennú a nočnú časť:
Denná časť: obývacia izba, prepojená s kuchyňou, skladom (špajzou), jedálenským kútom, dverami na terasu. Z chodby je vstup do skladu vedľa kuchyne
Nočná časť: dve samostatné izby, technická miestnosť s toaletou pre hostí a kúpeľňa s toaletou, sprchou, vaňou a umyvadlom.
VYBAVENIE NEHNUTEĽNOSTI:
INTERIÉR: Dom sa predáva v kvalitnom štandarde: interiérové dvere so zárubňami, veľkoplošná dlažba vo vstupnej predsieni, technickej miestnosti s WC, sklade (špajzi) a v kúpeľni.
V izbách a vo veľkej chodbe kvalitné laminátové celoplošné parkety.
Technická miestnosť je vybavená toaletou pre hostí, umyvadlom so skrinkou, elektrický kotol pre podlahové kúrenie, zn. Protherm, 100litrový zásobník vody, prípojka pre automatickú pračku, sušičku, odpad, prívod vody zo studne, aj mestská voda s uzatváracími ventilmi (možnosť používania vody mestskej alebo vlastnej. V kuchyni príprava pre kuchynskú linku, bez linky.
Kúpeľňa je vybavená klasickou vaňou, sprchovacím kútom, toaletou, umyvadlom so skrinkou, veľkým oknom na odvetranie. Centrálny termostat na chodbe, v každej izbe príprava pre internet, TV, alarm, klimatizáciu.
EXTERIÉR: Fasádna farba biela, šedá, hromozvody, vetranie strechy (mriežky z boku fasády v hornej časti), príprava pre vonkajšie osvetlenie domu, kábel pre alarm, vyvedená elektrina pod zemou aj na dvor pre prípadný altánok, prístrešok pre autá, osvietenie. Ďalej príprava pre vonkajšie elektrické rolety na oknách, príprava pre nabíjačku na elektromobil.
INŽINIERSKE Siete: ELEKTRINA 220/380v, ELEKTRICKé PODLAHOVé KúRENIE, KOTOL, ZN. Protherm, zásobník vody 100L, vlastná voda - vŕtaná studňa, mestská voda, dom je napojený na verejnú kanalizáciu, plyn nie je.
POZEMOK: oplotenie z oboch strán betónovým bariérovým oplotením, zo zadnej a prednej strany 3D pletivo, bránka a brána na DO. V cene zarovnaný, zatrávnený dvor, chodníky, veľká plocha so zámkovou dlažbou (betón, karirohož), čerstvo osadené tuje v predzáhradke. Ďalej v cene aj zadné oplotenie 3D pletivom.
Obec Báč leží len na 6 km od Šamorína s bohatou občianskou vybavenosťou, na päť minút od rýchlostnej cesty R7D4 ale aj blízko prírody, Dunaja, cyklistickej cesty vzdialenej len dva km a tiež športový a voľnočasový rezort X-bionic sphere nachádzajúci sa v 5 km vzdialenom Šamoríne.
Celková kúpna cena za dom s pozemkom po zľave = 214 900 € + znalecký posudok v cene !
Možnosť riešenia hypotekárneho úveru, s kompletným poradenstvom, porovnaním bánk a riešením kompletného právneho servisu v cene nehnuteľnosti.
Kontakt pre ďalšie info a obhliadky Katarina Čepčeková 0905 758043
Text a fotografie sú autorským dielom a majetkom realitnej kancelárie RealityDS, s.r.o.
Všetky ponuky nájdete na www.realityds.sk
Interné ID: | 123459081 |
---|---|
Obec: | Báč |
Okres: | Dunajská Streda |
Kraj: | Trnavský kraj |
Druh: | Domy |
Typ: | Predaj |
Typ domu: | Rodinný dom |
Iné: |